Grundstück: ca. 2.465 m²
Wohn-/Nutzfläche: ca. 918,60 m²
Schlafzimmer: 5 luxuriöse Suiten
Badezimmer: 5
Pool: großzügiger Außenpool
Stellplätze: 3 (inkl. Garage)
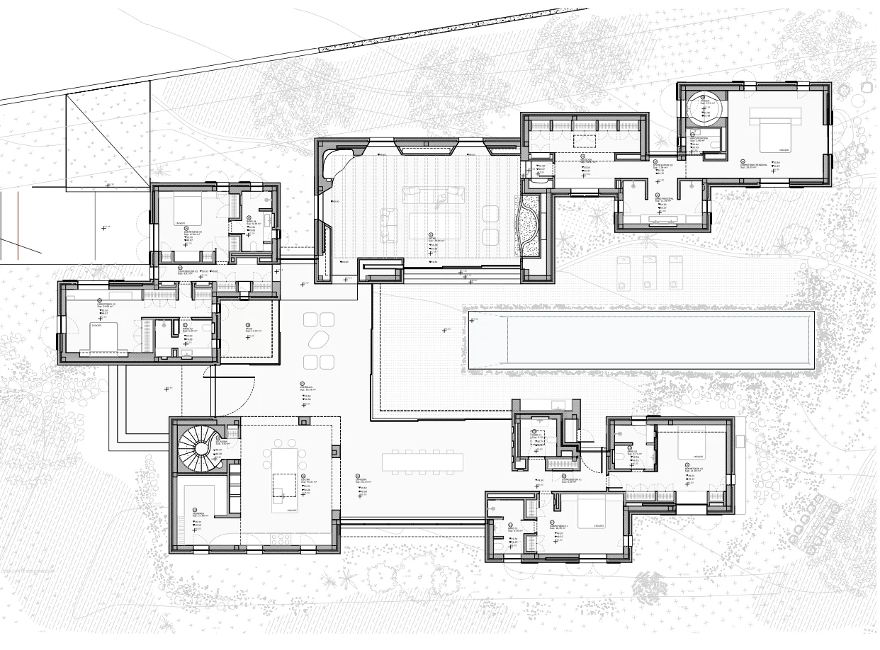
Architektur & Raumkonzept
Die Villa besticht durch ihre harmonische Kombination aus mediterraner Bauweise und klaren, modernen Linien. Hochwertige Materialien, großzügige Glasflächen und offene Grundrisse schaffen ein lichtdurchflutetes Wohnambiente mit fließenden Übergängen zwischen Innen- und Außenbereich.
Der Wohnbereich im Erdgeschoss umfasst:
einen repräsentativen Eingangsbereich
ein großzügiges Wohnzimmer (ca. 80 m²)
eine offene Designküche mit angrenzendem Essbereich
mehrere Gäste- und Schlafräume mit en-suite Bädern
Innenhof (Patio) für zusätzliche Licht- und Ruhezonen
Im Obergeschoss befindet sich die beeindruckende Master-Suite mit:
Ankleidebereich
luxuriösem Bad
Zugang zu privaten Terrassen
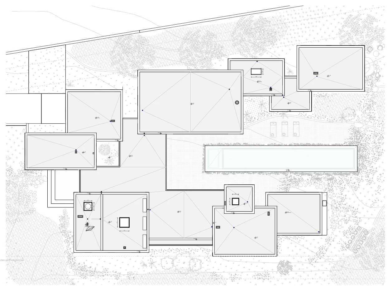
Untergeschoss & Technik
Das Untergeschoss bietet neben funktionalen Räumen auch großzügige Nutzflächen:
Garage für mehrere Fahrzeuge
Technikräume (Pool & Haus)
Hauswirtschaftsraum & Lagerflächen
moderne Haustechnik und Infrastruktur
Außenbereich
Der liebevoll gestaltete Außenbereich ist eine Oase der Ruhe:
weitläufige Terrassenflächen
eleganter Poolbereich
mediterrane Gartenanlage
direkter Blick ins Grüne und auf den Golfplatz
Hier verschmelzen Natur, Privatsphäre und luxuriöses Wohnen zu einem einzigartigen Lebensgefühl.
Lagebeschreibung
Nova Santa Ponsa zählt zu den begehrtesten Wohnlagen im Südwesten von Mallorca. Die Kombination aus exklusiven Golfplätzen, gehobener Infrastruktur und Nähe zur Hauptstadt Palma de Mallorca (ca. 10 Minuten) macht diesen Standort besonders attraktiv.
renommierte Golfplätze in unmittelbarer Nähe
Yachthafen Port Adriano
Strände, Restaurants und Einkaufsmöglichkeiten
internationale Schulen und medizinische Versorgung