Geräumige Villa in bester Wohngegend

2.750.000 €
Grundstück

1.100 m²

WOHNFLÄCHE

330 m²

Schlafzimmer

5

Badezimmer

5

Objekt-ID

1219

Beschreibung

Diese sonnige Villa mit luftig-mediterranem Flair bietet großzügigen Platz für eine große Familie in einer ruhigen Umgebung. Mehrere einladende Terrassenbereiche sind mit einer vollständigen Sommerküche sowie reichlich Ess- und Sitzgelegenheiten ausgestattet. Der gepflegte Garten verfügt über hochwertigen Kunstrasen, eine Boulebahn und einen schönen Swimmingpool, ideal für entspannte Stunden im Freien.

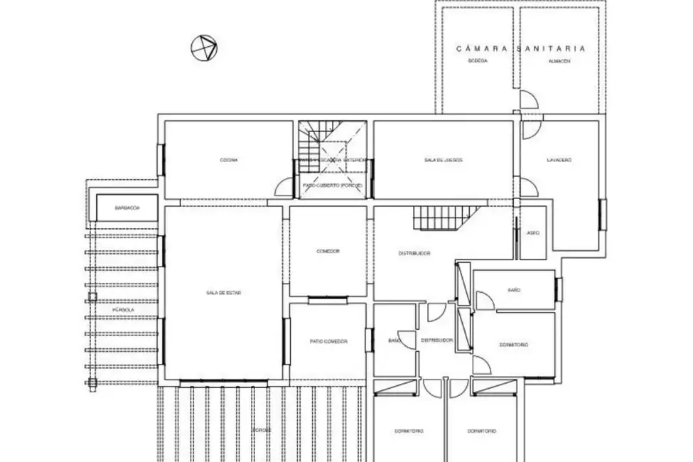
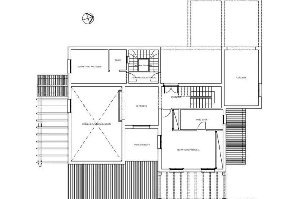
Die Immobilie erstreckt sich über zwei Etagen. Auf der oberen Etage, vom Haupteingang aus gesehen, befindet sich ein Bürobereich sowie das geräumige Hauptschlafzimmer mit eigenem Bad und einer großen, sonnigen Terrasse mit teilweisem Meerblick. Zudem gibt es auf dieser Ebene ein vollständiges Gästeschlafzimmer mit eigenem Bad.

Der Wohnbereich auf der unteren Etage beeindruckt mit hohen Decken und großen Fenstern, die den Blick auf den Garten freigeben und viel Tageslicht hereinlassen. Die offene Küche wurde kreativ renoviert und ist ein echtes Highlight dieses Hauses. Drei weitere Schlafzimmer, eines davon mit eigenem Bad, ein separates Badezimmer, ein Gäste-WC, ein Weinkeller sowie ein Hauswirtschaftsraum runden das Erdgeschoss ab.

Zusätzliche Highlights sind eine Garage, Klimaanlage warm/kalt, Holzbalken und ein Spielzimmer mit Gästetoilette. In einer exklusiven und begehrten Wohngegend in Nova Santa Ponsa gelegen, ist diese Villa nur wenige Minuten von mehreren Golfplätzen, Stränden und dem Yachthafen von Port Adriano mit hervorragenden Cafés, Restaurants und Einkaufsmöglichkeiten entfernt. Damit eignet sie sich perfekt als Ferienhaus oder Vollzeitwohnsitz.

Rossitza Hantelmann

Gründerin & CEO

Merkmale

Gartennutzung
Klimatisiert
Swimmingpool
Unterkellert

Location

WIR FREUEN UNS AUF IHRE ANFRAGE

Geräumige Villa in bester Wohngegend

Weitere Immobilien

3.950.000 €
3.950.000 €
Santa Ponsa
6.500.000 €
6.500.000 €
Ses Salines
6.500.000 €
6.500.000 €
Son Vida
4.980.000 €
4.980.000 €
Santa Ponsa
7.500.000 €
7.500.000 €
Santa Ponsa
Reserviert
4.900.000 €
4.900.000 €
Santa Ponsa

SUCHE